Très grand bâtimet situé dans le village de Chôdes, juste avant l’entrée du domaine « Les Terrasses de Malmedy » (domaine composé de nombreux logements touristiques).
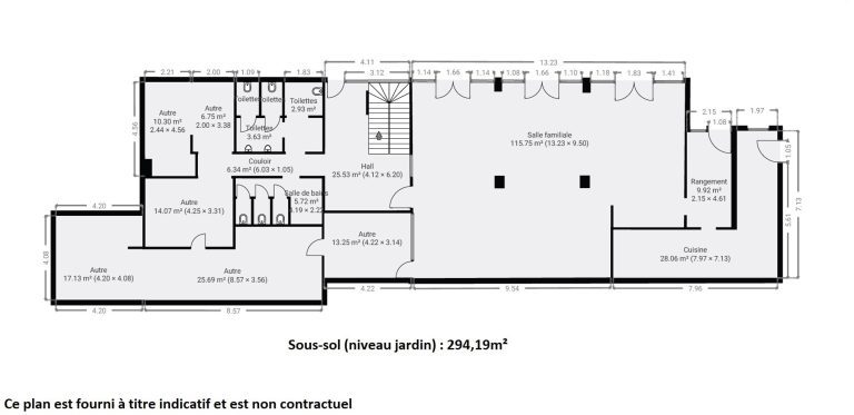
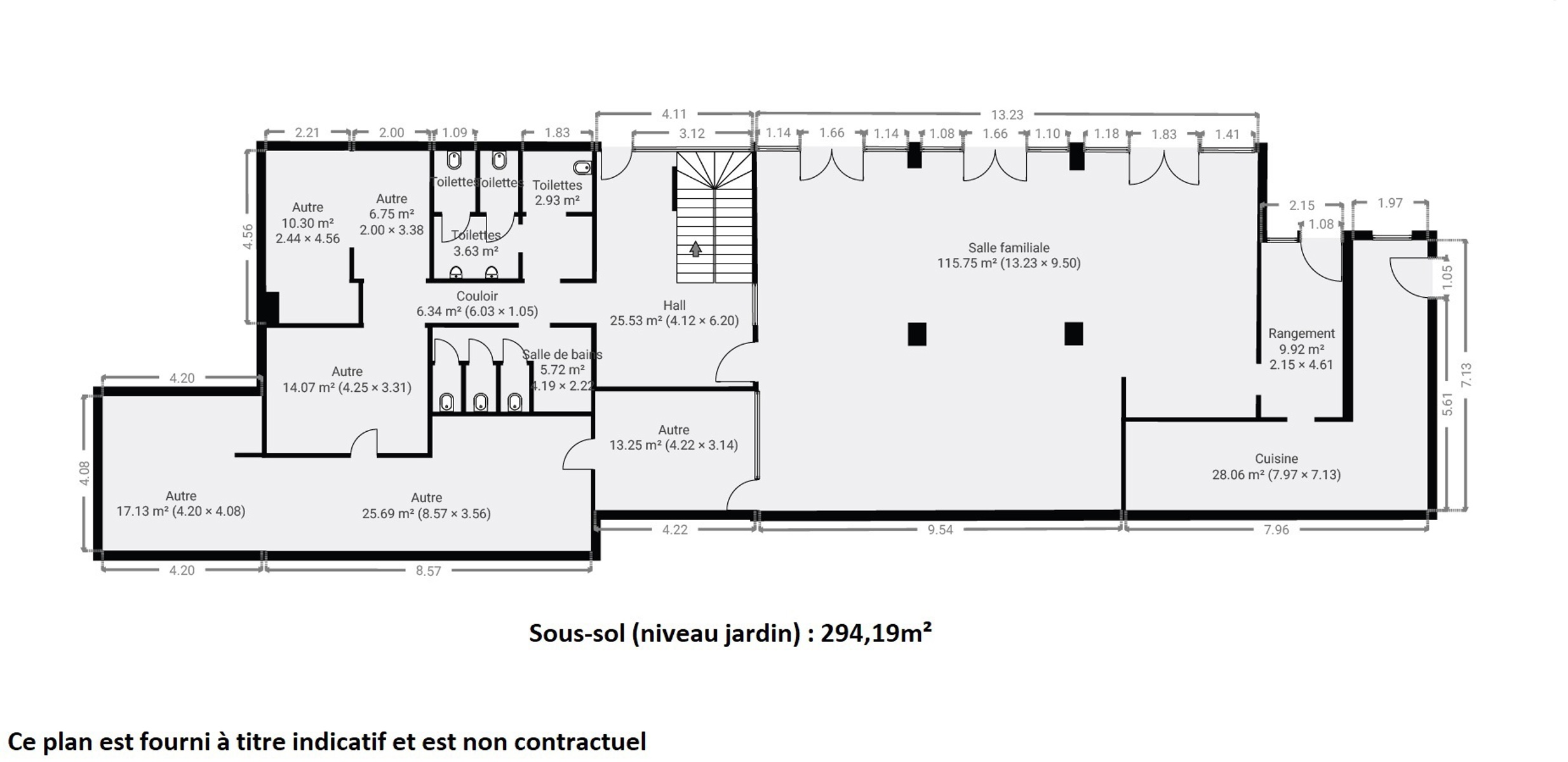
Il s’agit d’un bâtiment anciennement composé de bureaux, d’un logement et d’un espace horeca (restaurant/superette) avec espace cuisine, stock, ancienne chaufferie, espace WC, etc.
Le bâtiment n’étant plus utilisé depuis plusieurs années, il nécessite une grosse rénovation dans son ensemble (gros budget à prévoir étant donné la surface disponible : électricité, châssis, toiture, chauffage,…).
Ce bien possède un énorme potentiel et dispose d’une multitude de possibilités. Il peut être transformé en un ou plusieurs logements touristiques (moyennant permis à introduire à la commune mais la possibilité existe) dans le même principe que le domaine de vacances qui se trouve juste à côté.
L’ensemble dispose d’une grande terrasse mais pas de jardin privatif (on peut cependant l’utiliser !)
Mesurage de la parcelle à prévoir dont les frais seront à charge de l’acquéreur.
L’exploitant pourra s’y domicilier (cela sous-entend qu’il ne pourra y avoir une domiciliation que s’il y a l’exploitation d’une partie du bâtiment pour une autre utilité que l’habitation permanente). La domiciliation n’est cependant pas une obligation.
Nombreuses autres conditions à voir en agence (notamment des charges communes à prévoir car le bâtiment fait partie du complexe avec les chalets de vacances).
Ce bâtiment est vendu sans la propriété du terrain sur lequel il se trouve. Il y aura donc un bail emphytéotique (= bail de longue durée) à payer au propriétaire du terrain. Le montant annuel du canon (= loyer) sera de 2.700€ indexé chaque année.




























